Map #1 | 804 Royal Jasmine Court

This stunning home in the highly sought-after Brookberry Farm neighborhood is a must-see.

Situated on a corner lot with a circular driveway, it offers timeless curb appeal with designer selected finishes, aluminum-clad casement windows, and lush landscaping. Inside, you’ll find exquisite details such as soapstone and quartzite countertops, a custom soapstone kitchen sink, and top-of-the-line Wolf appliances. Enjoy outdoor living year-round with a covered back porch featuring a fireplace and power screen, along with a patio and wood-burning fireplace—one of 3 fireplaces throughout the home.

Additional highlights include heated tile floors in the primary bath, zero-entry showers, custom
closets, a third-floor loft, and luxurious, high-end craftsmanship throughout.

About Home:
Directions:
  • Take US-421 North.
  • Take Exit 242. Turn right onto Styers Ferry Road.
  • In 1.3 miles, turn right onto Country Club Road.
  • In 0.3 miles, turn left onto Meadowlark Drive.
  • In 0.2 miles, turn left onto Rosewind Lane.
  • In 0.7 miles, turn left onto Brookberry Farm Circle.
  • Turn left onto Scarlet Tanager Drive.
  • The home is on the corner of Royal Jasmine and Scarlet Tanager
Marketed by:

Berkshire Hathaway
Home Services Carolinas Realty

Christine Graham
301.908.7031
christine.graham@bhhscarolinas.com

Courtney Pizzitola
713.677.3921
courtney.pizzitola@bhhscarolinas.com

Special Features:
  • 5 Bedrooms
  • 4 Full Baths
  • 2 Half Baths
  • Square Feet – 4,732

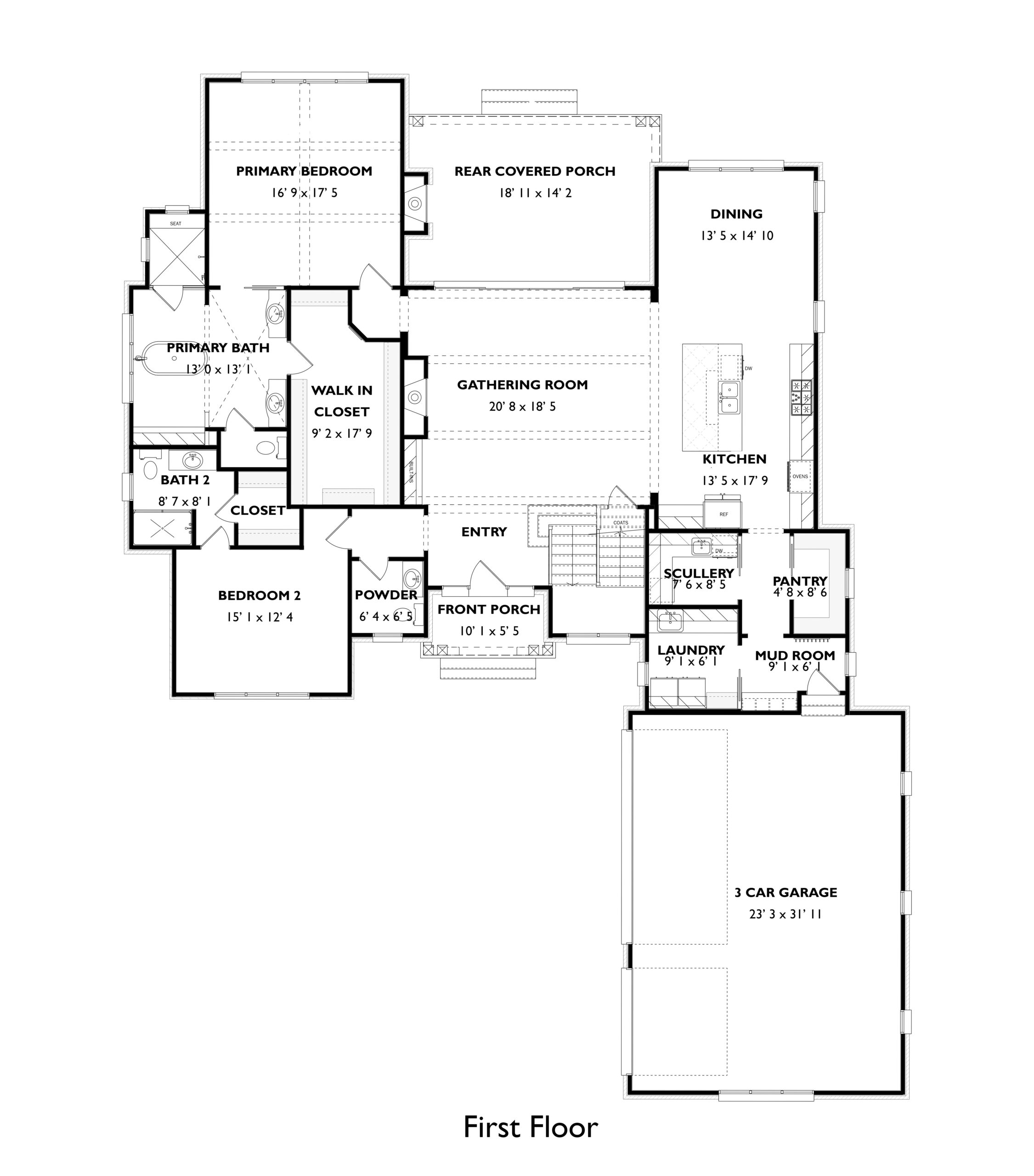
This 4,732-square-foot home offers an open floor plan with exposed beams in both the gathering room and main-level master suite, where the bathroom features a striking groin vault ceiling. The main level also includes a guest suite, spacious pantry, scullery, and a 3-car garage. Upstairs, you’ll find 3 bedrooms, a den, a bonus room, and a second laundry room. The third level adds a loft with a wet bar, half bath, and walk-out storage, completing this 5-bedroom, 4-full- and 2-half-bath home designed for luxury and functionality.

Built By:
Third Generation Homes, LLC
Vendor List:

Appliances – Ferguson Enterprises LLC | Brick – General Shale | Cabinets – Plyler Supply Co., Inc. | Closets – California Closets | Countertops – Dynamic Marble & Granite, Inc. | Doors – Pella Windows & Door Co. | Draftsman – BL Wilson Residential Designs Inc. | Electrical – Electriforce, Inc. | Flooring – Clemmons Carpets, Inc. | Framing – Builders FirstSource | Garage Doors – Garage Doors of the Triad LLC | Gas Logs – Fireside Hearth & Home | Gutters – Plyler Supply Co., Inc. | Hardware – Elite Specialty Products of NC, LLC | Interior Designer – Rachel Tatum Interior Design | Lighting – Plyler Supply Co., Inc. | Masonry – Huntley Brothers Co., Inc. | Siding – Plyler Supply Co., Inc. | Termite Protection – Poindexter Pest Control, Inc. | Tile – Studio Tile & Design, Inc. | Waterproofing – Sealing Agents Waterproofing | Windows – Pella Windows and Door Co. | Staging – Carolina Staging & Design

Property Video

For More Information

If you have additional questions, please visit the Frequently Asked Questions page for more information. For questions about accessibility during in-person tour, please contact us at (336) 768-5942

Tate Rice Homes

Tate Rice Homes, Inc. founded in 1999, was created with the mindset of building a quality home while providing the homeowner with the most pleasurable home buying experience.

Tate Rice combines his North Carolina State University mechanical engineering degree, easy going demeanor and over 20 years of building experience to create homes of utmost quality at a fair and competitive price.

Habitat for Humanity of Forsyth County

There is a tremendous need for affordable housing in our community. One in three families in our community is cost-burdened, meaning they pay too much of their income toward housing at the expense of other necessities like groceries, healthcare, and education.

To help meet this need, Habitat Forsyth provides homeownership opportunities for families between 45 – 80% AMI and preserves existing affordable homes. We also advocate for policy change that will increase access to housing for everyone.

Since 1985, Habitat Forsyth has built more than 400 safe, affordable, energy-efficient homes in Forsyth County. We’ve served nearly 1,000 families with new construction, home preservation and global building.

We can’t do this work alone: a core mission tenant is bringing people together. We are able to build, preserve and advocate because of support from faith groups, corporations, foundations, other non-profit organizations, municipalities, individual volunteers and donors.

Westphalia Construction Co., Inc.

David began his building career while attending Wake Forest University and working for a well-established local builder. He built his first house during his junior year. As a proud graduate of Wake Forest University, David founded his building company in 1990. After many years of successful building, David has created a long-standing presence in Winston Salem.

As a member of the Winston Salem Home Builders Association as well as the National Association of Home Builders, David strives for excellence in all that he does! Westphalia Construction Company, Inc. holds a North Carolina Unlimited General Contractor’s license (#32127).

David was chosen as one of the area’s finest builders to design and build three of the former Home Builder Association homes for which he is proud. He has also served as a Board Member of the Winston Salem Home Builders Association as well as a member of the Ethics Committee.

Westphalia also enjoys renovation projects – large and small. Nothing is more exciting than breathing new life into an older home. After all, remodeling is the ultimate recycling!

Woodbourne Properties

At Woodbourne Properties Inc., we don’t just build houses — we craft custom homes that reflect the people who live in them. From architectural detail to thoughtful finishes, every element of your new home is approached with integrity, craftsmanship, and heart. Whether you’re starting from scratch or developing on existing land, our team is here to turn your vision into a legacy.

Ricci Builders & Management, Inc.

Ricci Builders & Management is a full-service general contractor that combines beautifully crafted homes with the latest in high-performance building. For over two decades, we have built energy-efficient homes in Winston-Salem, NC, and surrounding areas, including Lewisville, Clemmons, Pfafftown, Summerfield, Oak Ridge, Tobaccoville, Advance, Belews Creek, and Kernersville.

As a high-performance builder and Energy Star Partner, Ricci Builders provides future homeowners with a healthy, lasting home. Whether in need of a custom home or a home remodel, we work with you throughout the entire process to provide the home you have always wanted.

James Ashley Homes

James Ashley Homes is recognized as one of the premier home builders in Forsyth County and the greater Winston-Salem, NC area.

The company’s founder, James Caudill, grew up around construction, working alongside his father and uncles on high-end residential developments in Wilkes County. At just 13 years old, James began by cleaning up job sites to earn spending money, but his curiosity quickly led him to ask questions and learn the trade. By 14, he was already framing houses, developing the hands-on skills that would shape his lifelong career.

At 20, with little more than a 1991 Honda Accord, a few tools in the trunk, and a 6’ step ladder, James struck out on his own. Word spread quickly about his workmanship, and opportunities soon followed. As his business grew, he upgraded to a work van and expanded into custom trim and finish packages, gradually building the foundation of the company he leads today.

In 2013, encouraged by his wife Ashley, James earned his North Carolina General Contractor’s license, passing the rigorous exam on his first attempt. While licensed in both residential and commercial construction, his true passion has always been building custom single-family residences that families are proud to call home.

Originally launched as James Caudill Construction, the company has since rebranded to James Ashley Homes, reflecting the family partnership James and Ashley share in building homes of quality, character, and timeless design

Arena Builders

Welcome to ARENA Builders where the difference is in the details. Founder Rich Achor and sons, Nick and Alex along with their professional team of contractors pour over 20 years of experience and creativity into making customer dreams a reality, exceeding the expectations of homeowners throughout Forsyth, Davie and Davidson counties. Building a custom home should be an exciting, enjoyable experience and with ARENA Builders, it is. Relax and enjoy the ARENA experience.

Wishon & Carter

In 1971, Wishon & Carter Builders started as a homebuilder servicing Yadkin County. Today we have grown to a full-service residential and commercial general contractor operating in both North and South Carolina. With more than 40 years of quality design and craftsmanship, Wishon & Carter Builders is one of the most experienced builders in North Carolina.

RL Riddle

RL Riddle Construction LLC was established in 2011 by Randy Lee Riddle Jr. Over the years Lee has built an outstanding reputation for fairness, honesty, quality of work, attention to detail, and job site cleanliness. Lee is involved with every RL Riddle project and maintains a hands-on approach through every project’s completion.

James Alexander Homes, LLC

Established in 1985, James Alexander Homes is family business dedicated to creating beautiful homes, building strong foundations, and upholding our values of faith and community. We are more than just experienced home builders; we combine decades of experience with a passion for crafting beautiful family homes, from the coastal shores to the mountains across the state of North Carolina.

We would be honored to be a part of your home building journey. Let our passion for building homes

Conrad & Conrad, Inc.

At Conrad and Conrad, Inc., we specialize in commercial construction, including new buildings, upfits, and renovations. We also bring our expertise to residential construction, offering custom homes, room additions, and remodeling services. This includes renovations of kitchens, bedrooms, living areas, bathrooms, and basements.

We create functional and beautiful outdoor living spaces, such as decks, screen porches, patios, garages, and carports.

Conrad & Conrad, Inc. is a family-owned business that has served Winston-Salem, Lewisville, Clemmons and the surrounding area for over 60 years. With four generations of experience in commercial and residential construction, we’ve built a strong reputation for delivering high-quality work with integrity.

DR Horton

From our first home in 1978 to over 1,000,000 homes in 2023, our mission remains the same — to deliver quality and affordability across the country.

Since 2002, more people have chosen D.R. Horton than any other builder. Buy or rent, we have homes and services to provide a home for every stage in life.

MGP Homes & Pools

We are a quality custom home & pool builder dedicated to delivering exceptional craftsmanship and integrity in every project. With years of experience in the industry, we are dedicated to building not just houses & pools, but lasting relationships with clients based on trust and transparency.

Siena Signature Homes

Siena Signature Homes has built a reputation for quality custom built homes with dedication to personal attention to each home owner.

Siena’s commitment begins with a special understanding of what it takes to transform your dream home into reality. Starting with an eye for detail, superb craftsmanship and upmost care.

A Siena Signature Home is easy to pick out of a crowd based on its trim detailing both interior and exterior, careful designing for the real needs of families and the precision of quality in which the home is built.

Hall of Fame Builders

Hall of Fame Properties has been in business since 2003 designing and building homes to create the best living experience for our customers. We use the latest technology and construction techniques to ensure that our homes are of the highest quality. Weather we are constructing ground up Custom Homes, Modular or Metal buildings we take pride in our craftmanship and customer satisfaction. It is our mission is to build homes that inspire and delight. We believe that a home should be more than just a place to live – it should be a reflection of your personality and style. We work closely with our clients to understand their unique needs and preferences, and we use our expertise to create homes that exceed their expectations.

Nova Triad Homes

Founded in 2016, Nova Triad Homes has become one of the leading active adult home builders in the Piedmont Triad. With a focus on outstanding quality and responsive customer service, we are an EPCON community builder in Alamance, Forsyth, Guilford, and Randolph counties. Our sales and constructions teams have decades of home building experience which enables us to provide informed recommendations on which options and selections to choose when you build a patio or twin home with Nova Triad Homes.

Keystone Group, Inc.

Keystone Homes, a top homebuilder in the Triad, delivers exceptional quality, outstanding service, and affordable pricing. Founded in 1996 by Scott Wallace and Mark Michael, the company has earned a trusted reputation through their combined vision and deep industry expertise.

Scott, an engineer, joined forces with Mark, a seasoned builder with over 20 years of experience, to create Keystone Homes. Their mission is clear: build high-quality homes at prices families can afford. By partnering with skilled local tradesmen, they ensure every home reflects superior craftsmanship and attention to detail.

Keystone’s award-winning designs have earned gold and silver honors in the Greensboro and Winston-Salem Parade of Homes. These homes stand out with their lasting quality, modern features, and thoughtful upgrades that meet today’s buyers’ needs.

Beyond construction, Keystone Homes prioritizes total customer satisfaction. From the first meeting to the final walk-through, Scott, Mark, and their team focus on making each homeowner happy. Their commitment to quality and service gives homeowners peace of mind and confidence in their investment.

For more information on available homes or to explore custom design options, contact Keystone Homes today and experience the difference for yourself.

A-P Construction Co., Inc.

Lennar

Since 1954, Lennar has built over one million new homes for families across America. We build in some of the nation’s most popular cities, and our communities cater to all lifestyles and family dynamics, whether you are a first-time or move-up buyer, multigenerational family, or Active Adult.

Lakenridge Builders, Inc.

Lakenridge Builders Inc. emphasizes building a strong, working relationship with our customers. We are a family-run company serving Greensboro, High Point, Winston Salem and the surrounding areas since we began in 2001. We take great pride in handling each renovation project with care as if it were for our own family. Owner Jamie Campbell has been in home construction for more than twenty years. An expertly-skilled carpenter and craftsman, Jamie has been involved in every part of the building and renovating process. He thoroughly trains his employees so you will receive the highest quality of work and outstanding customer service from each employee at Lakenridge Builders Inc.

Trent Adams Properties

Trent Adams Properties has been building in the Piedmont Triad area for over 35 years. Together with his job foremen (Mark Clarkson and Marty Vaden) and designer/decorator (Donna Hatcher), the team has more than 140 years of high-quality construction experience. Every detail is chosen by you. Trent Adams and his team of subcontractors and vendors, who have been working together for more than 21 years, can help you discover the joy and benefits of owning a home that was built by your dreams.

Trent is a third generation general contractor. He loves the process of helping clients design, plan, price and build their new home. He has built over 1,000 homes in his 35 years and has built multiple homes for the same clients, time and again. Trent has a Bachelor’s Degree from Vanderbilt University and an MBA from the prestigious Babcock School of Business at Wake Forest University. He is married with three children and one grandson.

“A home is the greatest financial investment a family will make. We work very hard to make the building experience enjoyable, and to build a home that will last a lifetime.”

Shane Wagoner Homes, Inc.


With over 40 years of building custom homes in the Triangle, the Wagoners have established a reputation that many local builders strive to achieve. Wagoner Homes success has been solely based on top notch quality and customer care while remaining attentive to the details.

Isenhour Homes, Inc.

Every new home we build begins with you and your family. Our experienced in-house design team, state-of-the-art design center, and portfolio of extraordinary floorplans gives you the opportunity to tell us exactly what you want. We can’t wait to build your dream home.

Veritas Construction

When you Meet Michael Enscore of Veritas Construction, be prepared for a good laugh, or at least a joke. But behind that jovial and easy-going personality is a man serious about building a quality custom home second to none, upon the foundation of “truth” – translated as Veritas in Latin

Third Generation Homes

Founded in 2017 by Andrew Reece, Third Generation Homes stands as a testament to the enduring legacy of craftsmanship, innovation, and dedication. With a deep-rooted passion for creating exceptional living spaces, Andrew embarked on a journey to transform dreams into tangible realities.
At Third Generation Homes, our mission is to craft more than just houses; we build homes where memories are made, aspirations are nurtured, and lives are woven into the fabric of each meticulously designed space. We believe that every corner, every detail, and every feature should reflect the individuality and aspirations of the families we serve.
With a firm commitment to versatility and quality, we specialize in creating semi-custom and multi-family homes that harmoniously blend innovation with timeless craftsmanship.

Mungo Homes

What started as a small privately-owned development and home building company in Columbia, South Carolina in 1954, has grown into a large, billion dollar home building operation with a multi-state footprint.

While still family-focused today with Steven Mungo as Executive Chairman, Mungo Homes proudly became part of the Clayton Properties Group family of companies in 2018, and remains dedicated to quality construction, and an exceptional customer experience.

Homes by Jonathan Lee

We’re craftsmen bringing your vision to life with unparalleled professionalism, experience, and trust. Our journey began on March 3rd, 1995, when Jonathan, alongside his wife Alicia, channeled his lifelong passion for construction into creating a company that stands for quality and integrity.

Black Rock Home Builders

Black Rock Home Builders is a high-quality custom home builder infusing projects with integrity, creativity, collaboration and craftsmanship.
Building custom homes for years, we’ve assembled an expert team of designers and project managers, an impeccable construction crew, and dedicated support personnel all with the same mission – to build not just custom homes for, but lifelong relationships with clients.
Your Structure home is more than just a place to live. It is an environment for living – one that brings you comfort, joy and satisfaction. It is a setting where you can express yourself, nurture growth and experience life with your family. It is a creation that is yours alone.

Arden Homes

Arden Homes is a highly regarded homebuilder in North Carolina’s Triad region, known for creating more than just houses—they build communities and lasting relationships with their clients. With over 30 years of experience, Arden Homes has earned a reputation for quality craftsmanship and personalized designs that cater to the unique needs of each homebuyer. Their approach is rooted in strong core values such as accountability, respect, and neighborliness, which guide every project they undertake.

At Arden Homes, the focus extends beyond constructing physical structures; they are dedicated to building trust and delivering a seamless, enjoyable homebuilding experience. This commitment to excellence is evident in their long list of awards and glowing testimonials from satisfied clients and real estate professionals alike.

If you choose Arden Homes, you’re not just selecting a builder—you’re partnering with a team that genuinely cares about helping you realize your dream home.